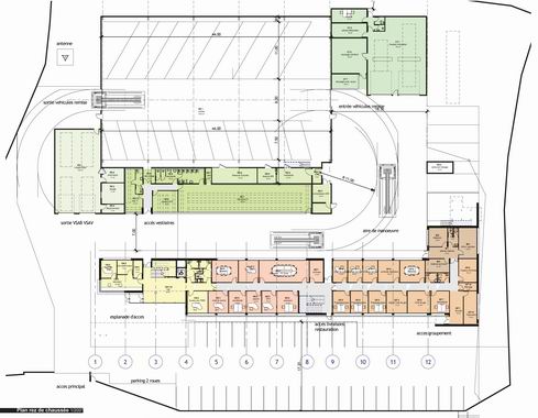
CENTRE DE SECOURS DE GARDANNE
Le terrain d’assiette de ce projet est situé en entrée de ville dans un secteur d’urbanisation de type pavillonnaire et mitoyen de l’actuel centre de secours et d’une zone sportive. La D6 reliant Gardanne à l’autoroute A51 en contre haut le positionne favorablement par rapport aux grands axes routiers tout en le rendant visible et repérable dans ce paysage péri urbain. Les vues sur le lointain s’ouvrent sur l’imposant massif de la sainte victoire au nord et sur le vieux village de Gardanne à l’est et plus particulièrement le clocher de son église. En utilisant les composantes de ce site, l’enjeu est de concevoir un bâtiment performant. Une nécessité pour répondre efficacement à l’énorme activité des utilisateurs tout en assurant au bâtiment un statut d’équipement public important.
CONCOURS Decembre 2013
M.O : SDISS DES BOUCHES DU RHONE
TREIZE DEVELOPPEMENT
BET : ARTELIA - INTERFACE (Economiste)
Surf HO : 3 000m2
Coût : 3 000 000 • HT









